
| Type de bâtiment | Bureaux |
| Surface Totale | 142 m² |
| Situation | A Louer |
| Commune | Perrigny |
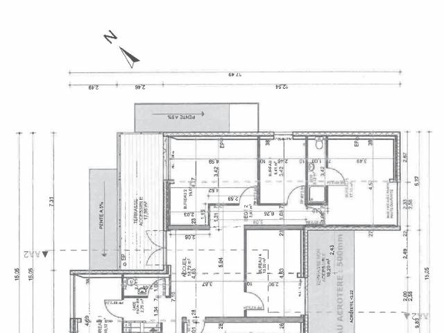
| Descriptif | A louer 142 m² de bureaux climatisés en excellent état, situés R+1 avec accès privé, et parking privatif (5 bureaux, 1 salle de réunion, archives, accueil, cuisine, sanitaires). Signature architecturale atypique. Proximité immédiate de la RN6, A6 et voies de contournement d'Auxerre. Accès directe à la zone commerciale des Bréandes |
| Nouveauté | Non |
| Adresse | ZA DES BREANDES |
| Complément d'adresse | 3T ALLEE DES PLATANES |
| EPCI | CA de l'Auxerrois |
| SCOT | GRAND AUXERROIS |
| Latitude | 47,82151 |
| Longitude | 3,55603 |
| Surface Totale | 142 m² |
| Bureaux | 142 m² |
| Etat du bâtiment | BON ETAT |
| Date de construction | 2016 |
| Travaux à prévoir | Non |
| Terrain clôturé | Non |
| Parking | Oui |
| Nombre de places ou surface | 7 places |
| Isolation des murs | Oui |
| Type de sols | PVC |
| Isolation du toit | Oui |
| Electricité | Oui |
| Puissance électrique | 12 kwa |
| Chauffage | ELECTRICITE |
| Eau | Oui |
| Gaz | Non |
| ADSL | Non |
| Fibre optique | oui |
| Assainissement | Oui |
| Pont roulant | Non |
| Quais | Non |
| Autres équipements | Climatisation réversible |
| Proximité du centre ville | Non |
| Situé en ZA ou ZI | Oui |
| Desserte réseau routier | N6 |
| Accés autoroute | A6 Auxerre Nord |
| Parcelle cadastrée | 380 - 396 AI |
| Règlement joint | Non |
| Plans | Oui |